Overview
Ref: PR100-12- 11320 m² Land Area
Description
Dit is een uitstekende gelegenheid om een stuk grond met een oppervlakte van 11.320 m² te verwerven en een vergunning te krijgen voor de bouw van een tankstation voor campers.
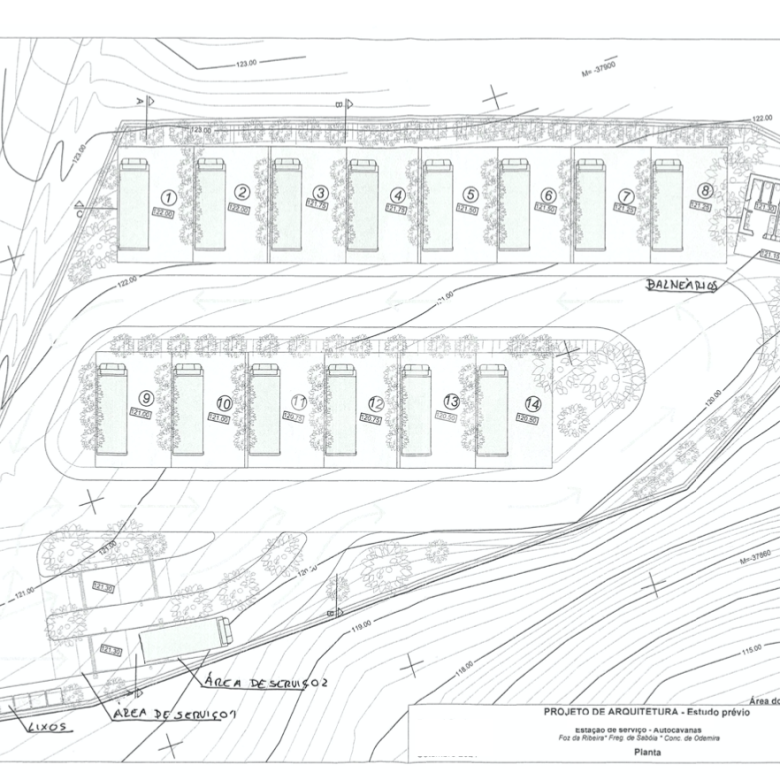
Het goedgekeurde project bestaat uit 14 afzonderlijke percelen voor campers van elk ongeveer 54 m².
De receptie zal een oppervlakte hebben van 22,20 m², terwijl de sanitaire voorzieningen een oppervlakte van ongeveer 26,80 m² zullen hebben (totale oppervlakte van 36,30 m²). Er is ook een servicegebied voor afvalwaterzuivering.
Het terrein is gelegen op een flauwe helling en is zorgvuldig voorbereid op het beoogde doel. Het land werd geëgaliseerd, omheind en er werden paden aangelegd. Het heeft watervoorziening, elektriciteit, internet en er zijn ongeveer 150 bomen geplant. Het heeft ook directe toegang tot een klein beekje.
Aan de overkant van de weg ligt het verlengde van het terrein, dat kan worden gebruikt als extra parkeerplaats voor de receptie. In dezelfde ruimte vinden we een ideale ruimte om te ontspannen bij het geluid van de prachtige stroom die het gebied doorkruist.
Het land is gelegen tussen São Teotónio en Saboia, in het district Beja, in Alentejo. De strategische ligging, gecombineerd met het dagelijkse caravanverkeer langs de weg, garandeert een groot potentieel voor bezoekers.
Het onderste gedeelte bevat een tank met een inhoud van 180.000 liter, die als zwembad kan worden gebruikt, heeft een boorgat van 140 meter diep en een pomp van 120 meter diep, met een capaciteit van 5.000 liter per uur.
De put heeft een dagelijkse inhoud van 20.000 liter.
Er zijn nog twee zoetwaterreservoirs gepland, een bovengronds met een inhoud van 8.600 liter en een ondergronds reservoir met een inhoud van 5.000 liter. Elke tank is voorzien van een eigen pomp.
De afvalwaterzuiveringsinstallatie heeft een capaciteit van 5.000 liter en wordt gevolgd door een tank van 8.000 liter en het watersysteem bestaat uit vijf pompen waarmee de bomen autonoom kunnen worden bevoorraad en geïrrigeerd.
Installatie is inclusief kranen op meerdere locaties!
Het reservoir met filtersysteem kan gebruikt worden als zwembad.
Het elektrische systeem is aangesloten op het EDP-net, dat een hoog vermogen levert met intelligente zekeringen om interferentie te verminderen.
Elke elektrische verbruiker is uitgerust met een eigen zekeringkast.
Er is een sterke stroming beschikbaar.
Mobiele satellietcommunicatie is beschikbaar.
De prachtige kustlijn met zijn charmante dorpjes, zoals Zambujeira do Mar, ligt op slechts ongeveer 25 kilometer afstand, terwijl populaire bestemmingen in de Algarve, zoals Lagos of Albufeira, in ongeveer een uur te bereiken zijn.
Lissabon, de levendige hoofdstad, ligt op ongeveer 220 kilometer afstand.
PR100-12
Address
- Land Portugal
- Staat Beja
- Stad Odemira
- Gebied Foz da Ribeira
Video
Request Information
- O&O Real Estate
Contact me




























